Go Back

Ascott Under Wychwood, Chipping Norton, OX7

Chipping Norton

£2,950,000

Bedrooms & Bathrooms

6 bedrooms, 2 bathrooms

Virtual Tours

View Virtual Tour

An extraordinary Grade II* Listed farmhouse with origins from the 12th century, set within 29 acres in Ascott under Wychwood, and offering a rare opportunity to restore a landmark property.

Manor Farm is an extraordinary Grade II* Listed property of immense historic importance, set in the sought-after village of Ascott under Wychwood. Originally the Manor House of the village, it lies within the bailey of the former castle of Ascott d’Oilly, with origins dating back to the 12th century and later additions through the 16th and 17th centuries.

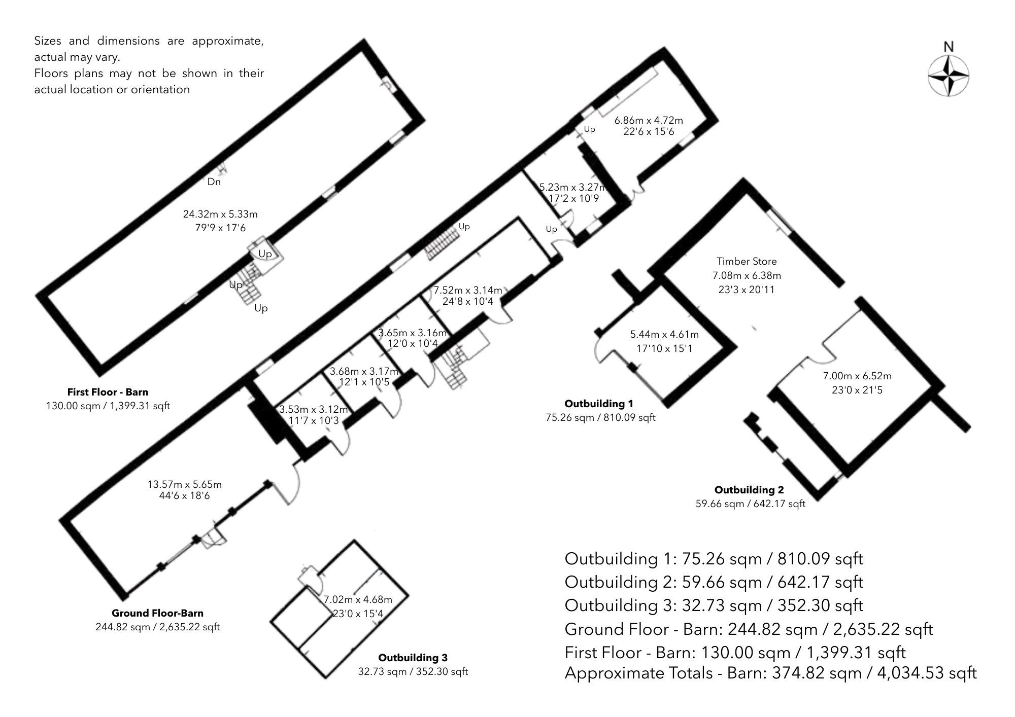
The main farmhouse extends to over 5,500 sq ft across two floors, arranged around a reception hall with four principal reception rooms and up to six bedrooms. Many period features remain, including medieval stonework and an early 13th-century window surround thought to have belonged to a private chapel. Together with the house, the estate totals 12,480 sq ft including a remarkable collection of stone barns, one of which is particularly impressive in scale, as well as a Elizabethan granary.

The wider grounds extend to approximately 29 acres and include formal gardens, paddocks, mature trees, and a conservation lake. A long stretch of river frontage adds to the appeal, creating a haven for wildlife alongside beautiful countryside views.

The farmhouse is in need of significant renovation, yet therein lies its attraction. Rarely does a property of this scale, provenance, and location come to the market, offering the chance to create something truly spectacular and befitting its historic and local significance. Whether restored as a landmark family home or reimagined with sensitive development of the barns (subject to consents), Manor Farm provides a once-in-a-generation opportunity.

Ascott under Wychwood is one of the Cotswolds’ most desirable villages, offering a thriving community, local shop, excellent pub, and highly regarded prep school. Nearby market towns include Chipping Norton, Burford, and Stow-on-the-Wold, with Charlbury station providing direct rail links to London.

Area services
• Mobile Phone Coverage - 5G mobile signal is available in the area, we advise you to check with your provider
• Broadband Availability – Superfast Broadband Speed is available in the area

  • Grade II* Listed farmhouse
  • Over 5,500 sq ft house
  • 12,480 sq ft with barns
  • Six bedrooms, four receptions
  • Extensive period stone barns
  • Approx. 29 acres included
  • Formal gardens, paddocks and conservation lake
  • Historic residence with restoration potential

Floorplan & Specifications

An extraordinary Grade II* Listed farmhouse with origins from the 12th century, set within 29 acres in Ascott under Wychwood, and offering a rare opportunity to restore a landmark property.

Speak to our Team

To view this property or find a home like it our team are here to help you
with some of most inspiring homes on and off the market.

Enquire Now