Go Back

London Lane, Ascott Under Wychwood, OX7

Ascott under Wychwood

£600,000

Bedrooms & Bathrooms

4 bedrooms, 3 bathrooms

An exceptional opportunity to create a bespoke Cotswold stone home in one of the region’s most sought-after villages.

A rare opportunity to build a bespoke family home in the heart of the highly desirable Cotswold village of Ascott-under-Wychwood, surrounded by open countryside yet perfectly placed for village life and commuter access to London.

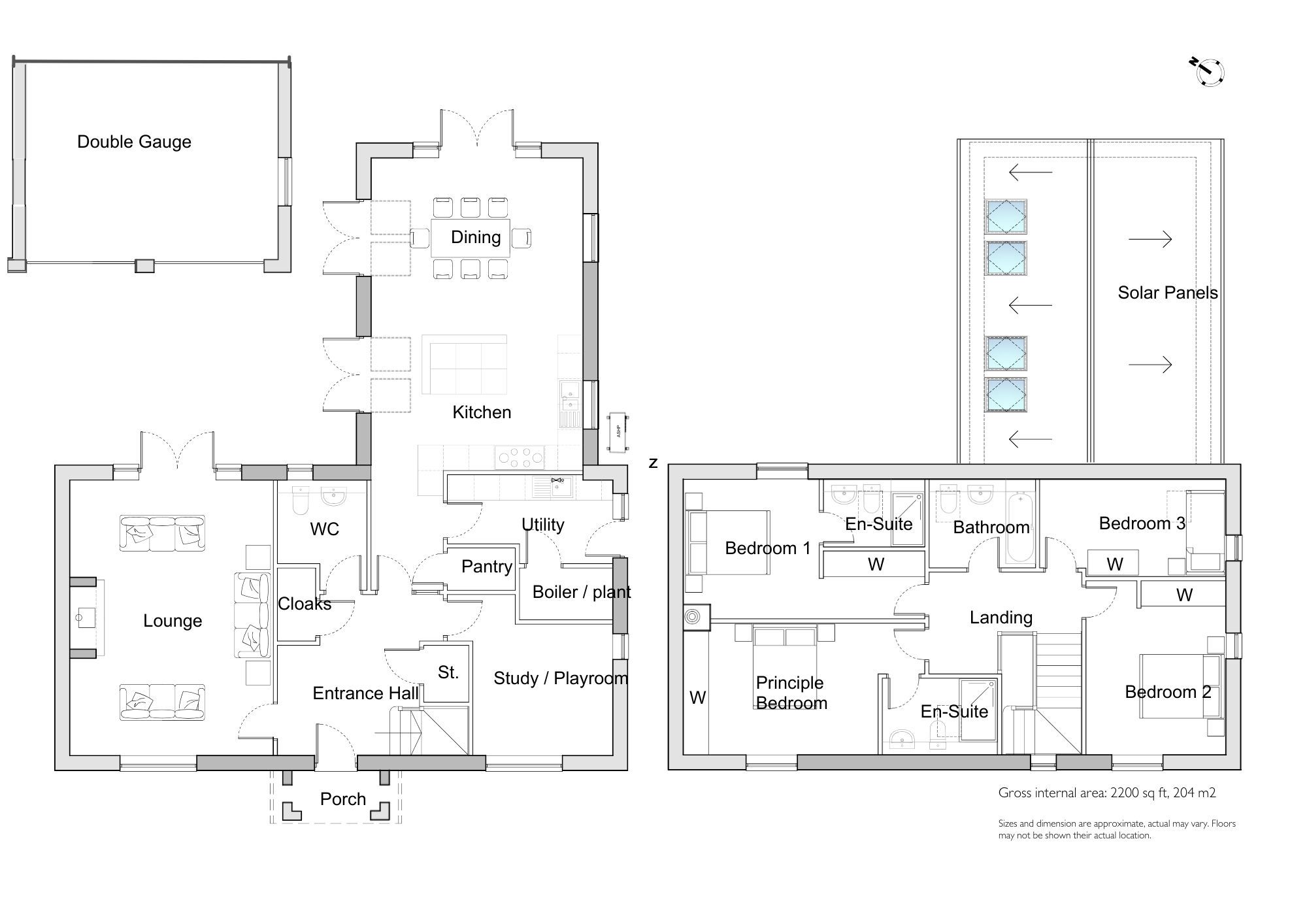
The plot benefits from planning permission for an attractive 2,200 sq ft detached family house, designed in traditional Cotswold stone to sit comfortably within its historic village setting. The approved plans provide a versatile and well-balanced layout, ideally suited to modern living.

The proposed accommodation includes four bedrooms and three bathrooms, alongside generous ground-floor living space. A large kitchen and dining room forms the heart of the home, complemented by a separate sitting room and an additional playroom or office, offering flexibility for family life or remote working. Externally, the design incorporates a detached double garage and gated driveway.

Ascott-under-Wychwood is particularly prized for its strong sense of community and exceptional local amenities, including the renowned Swan public house and Windrush Valley Preparatory School. The surrounding countryside offers an extensive network of footpaths and walking routes connecting neighbouring villages and unspoilt landscape.

Despite its rural charm, the village is exceptionally well connected. Regular rail services to London are available from nearby Kingham and Charlbury stations, making the location ideal for commuters seeking a Cotswold lifestyle without compromise.

Opportunities to create a new Cotswold stone home in such a prime village position are increasingly rare, making this an outstanding proposition for those looking to design and build a long-term family residence.

  • Village centre plot
  • Planning permission granted : 25/00887/FUL
  • Create a 2,200 sq ft family home
  • Cotswold stone design
  • Four bedrooms / three bathrooms
  • Detached double garage

Floorplan & Specifications

An exceptional opportunity to create a bespoke Cotswold stone home in one of the region’s most sought-after villages.

Speak to our Team

To view this property or find a home like it our team are here to help you
with some of most inspiring homes on and off the market.

Enquire Now